DOM w Gonczarach

 

PARAMETRY:
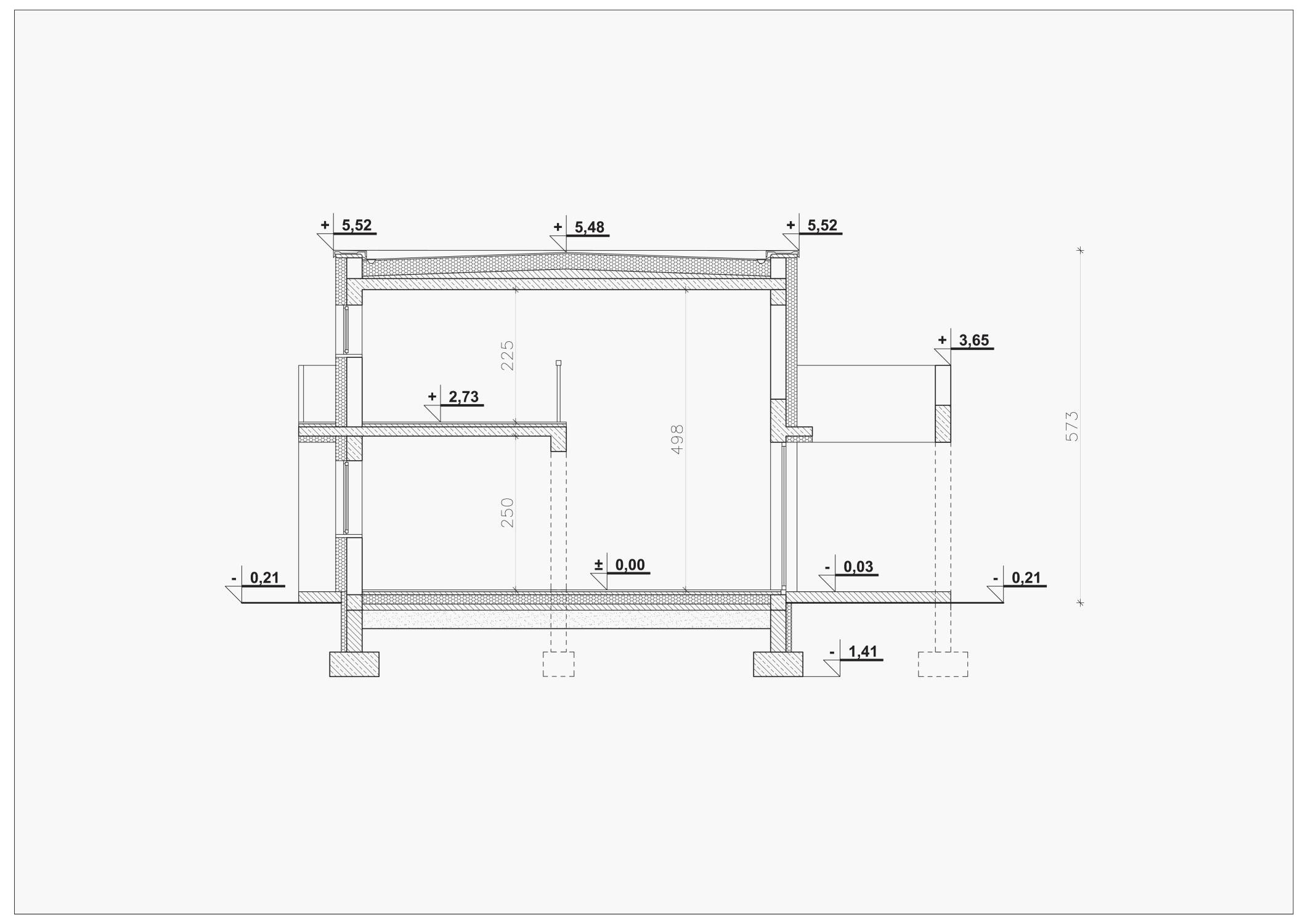
 OPIS BUDYNEK PARTEROWY Z PODDASZEM UŻYTKOWYM
 POWIERZCHNIA ZABUDOWY 150,31 m2
 POWIERZCHNIA UŻYTKOWA 99,83 m2
 KUBATURA 590,00 m3
 ILOŚĆ POKOI SALON + ANTRESOLA
 ILOŚĆ ŁAZIENEK 1

 

PROJEKT